Elit Kale
Projemiz

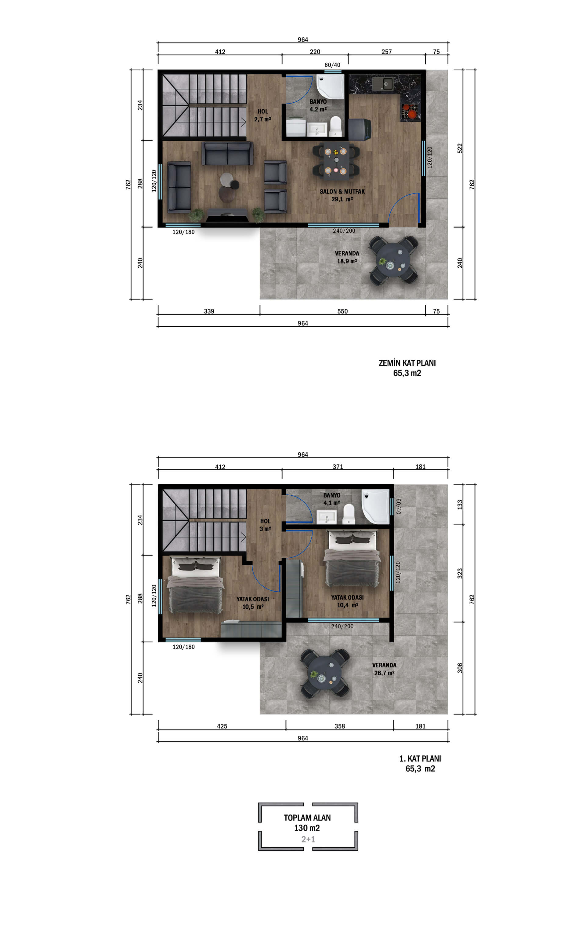
130 m² Çelik Ev

media
Fresh Concept Construction Renovation

130 m²’lik bu çelik ev modeli, modern yaşam ihtiyaçları düşünülerek tasarlanmış geniş ve ferah bir aile evidir. Zemin katta yer alan geniş salon, mutfak ve ortak yaşam alanları, aile bireylerinin birlikte keyifli vakit geçirebileceği rahat bir ortam sunar. Büyük cam yüzeyler, iç mekânın gün ışığıyla doğal olarak aydınlanmasını sağlayarak sıcak ve davetkâr bir atmosfer oluşturur. Dış cephede kullanılan modern kaplama detayları ise estetik ve şık bir görünüm kazandırır. Ayrıca veranda veya teras alanı, açık havada dinlenme ve misafir ağırlama için ideal bir kullanım sunar.
Üst katta bulunan yatak odaları, her bireye özel konfor alanı sunacak şekilde düzenlenmiştir. Geniş kullanım alanları ve modern banyo planlaması, günlük yaşamda rahatlık ve fonksiyonellik sağlar. Sağlam çelik konstrüksiyon yapısı sayesinde deprem ve dış hava koşullarına karşı yüksek dayanıklılık sunan bu model, uzun yıllar güvenle kullanılabilir. Enerji tasarrufu sağlayan yalıtım sistemi ve hızlı kurulum avantajı ile 130 m² çelik ev, hem ekonomik hem de konforlu bir yaşam arayanlar için ideal bir tercihtir.